School Lane, Staverton, Trowbridge, BA14 6NZ
homeSemi-Detached
bed3 Bedroom
bathtub2 Bathroom
£290,000
Sold STC
  • Three Bedroom Semi Detached House
  • Huge Rear Garden
  • Open Plan Ground Floor
  • Downstairs Shower Room
  • Three Double Bedrooms
  • Upstairs WC
  • Driveway & Garage
  • Superb Location
  • No Onward Chain

Summary

Situated in a convenient location, this spacious three-bedroom semi-detached property offers generous living accommodation and a fantastic rear garden, making it an excellent opportunity for families, first-time buyers, or investors alike.

Ground Floor
The property welcomes you into a hallway leading to a bright and airy lounge, which flows seamlessly into the open-plan kitchen. From here, a rear door opens onto the impressive garden, a standout feature of the home, offering plenty of space for outdoor entertaining, children's play, or future landscaping. A practical downstairs shower room completes the ground floor.

First Floor
Upstairs are three well-proportioned double bedrooms, providing flexible accommodation for families or those working from home. There is also a convenient upstairs cloakroom/WC.

Outside
To the front of the property is a driveway providing off-road parking, along with a garage. The rear garden is exceptionally large, offering huge potential for buyers to make their own mark.

This property is being offered with no onward chain.

Please call us to arrange a viewing.

Available Date: 25 Sep 2025

Tenure: Freehold

Council tax band: C

Location

School Lane is a well-established residential area in Trowbridge, ideally placed for access to local amenities, schools, and transport links. The property is within easy reach of Trowbridge town centre, which offers a wide variety of shops, supermarkets, cafés, and restaurants, along with leisure facilities including a cinema, park, and sports centre.

Families will appreciate the choice of nearby primary and secondary schools, while commuters benefit from Trowbridge railway station providing direct services to Bath, Bristol, and beyond. The A361 and A350 are also close by, connecting to the M4 and wider road network.

For those who enjoy the outdoors, there are open green spaces and countryside walks within a short distance, as well as excellent access to nearby attractions such as the Kennet & Avon Canal and the historic city of Bath.

Floors/rooms

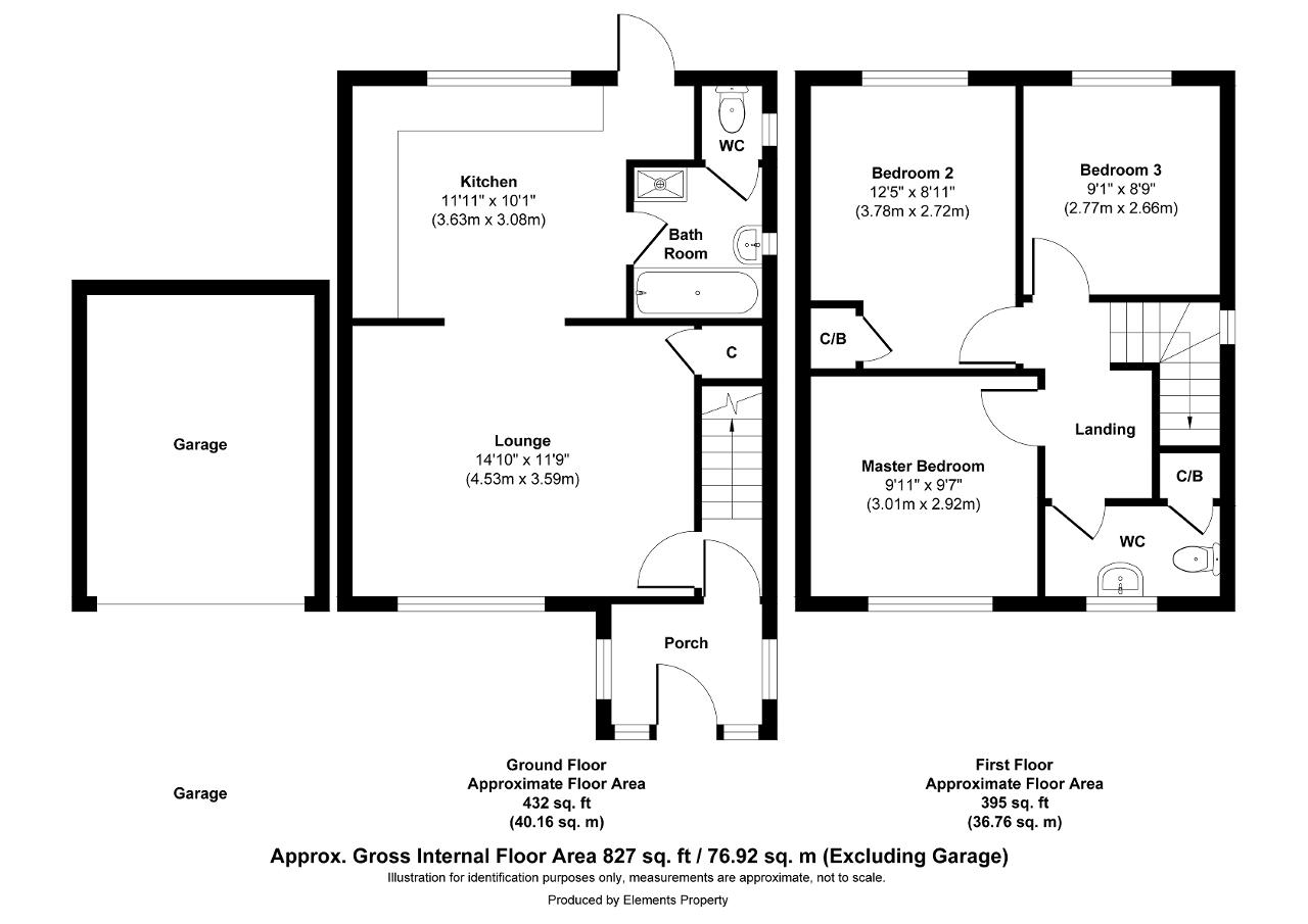
Ground Floor

Entrance Porch - UPVC door to front, UPVC aspect to front and side.

Entrance Hall - Wooden door to front with frosted aspect. Rad.

Lounge - 14' 10'' x 11' 9'' (4.53m x 3.59m) Aspect to front. Rad. Max measurements. Under stairs cupboard.

Kitchen - 11' 10'' x 10' 1'' (3.63m x 3.08m) Aspect to rear. Wall and base units with space for washing machine and fridge freezer. Oven and hob. Stainless steel sink and drainer. Tiled splash back. Rad. Boiler.

Back Entrance - Wooden door to rear with frosted aspect.

Bathroom - Frosted aspect to side. Bath, shower cubicle and pedestal sink. Rad. Partly tiled.

Cloakroom - Frosted aspect to side. WC.

First Floor

Landing - Aspect to side. Rad. Access to loft.

Master Bedroom - 9' 10'' x 9' 6'' (3.01m x 2.92m) Aspect to front. Rad. Max measurements.

Second Bedroom - 12' 4'' x 8' 11'' (3.78m x 2.72m) Aspect to rear. Rad. Max measurements. Cupboard housing tank.

Third Bedroom - 8' 8'' x 9' 1'' (2.66m x 2.77m) Aspect to rear. Rad.

Upstairs Cloakroom - Frosted aspect to front. WC, pedestal sink and rad. Cupboard.

Exterior

Rear Garden - Laid to lawn surrounded by mature trees. Enclosed by wall and fence panels. Access to garage. Side access.

Front Garden - Driveway to front. Lawn area.

Garage - Up & over door.

Additional Information

Local Authority - Wiltshire Council - Band C

Services
Mains Electric, Mains Water, Mains Gas, Broadband (BT)

Agents notes
1. When making an offer on this property we will ask you to produce identification documentation to comply with Money laundering regulations and ask for your co-operation in order that there will be no delay in agreeing the sale.
2. While we endeavour to make our sales particulars fair, accurate and reliable, they are only a general guide to the property and, accordingly, if there is any point which is of particular importance to you, please contact the office and we will be pleased to check the position for you, especially if you are contemplating travelling some distance to view the property.
3. The measurements indicated are supplied for guidance only and as such must be considered incorrect.
4. The particulars have been prepared in good faith but do not constitute fact or part of any offer or contact. The particulars should be verified by any prospective buyer.

For further information on this property please call 01454 529026 or e-mail [email protected]

EPC Graph

Interested in This Property?

01454 529026

[email protected]

Request a Viewing

Share this property:

RightmovePRSGoogle Reviews