Little Wood Park, Maple Ridge, Yate, Bristol, BS37 6PB
homePark home
bed2 Bedroom
bathtub2 Bathroom
Guide Price £200,000
  • Luxury Lodge
  • Over 40"s
  • Two Double Bedrooms plus Study
  • Open Plan Kitchen, Dining & Living Area
  • Bathroom & En-suite
  • Utility Room
  • Modern Decor Throughout
  • Patio Doors Leading to Decking Area
  • Off Street Parking for 2 Cars
  • No Onward Chain

Summary

Situated within a peaceful, private gated community exclusively for the over-40s, this beautifully presented park home offers a quiet and secure lifestyle in a highly desirable setting.

The property is modern and tastefully decorated throughout, featuring two generous double bedrooms, both benefiting from built-in wardrobes. The master bedroom further enjoys the added luxury of a contemporary en-suite. A separate study provides an ideal space for home working or hobbies, while a stylish main bathroom serves the rest of the home.

In addition, the property benefits from a useful utility room, providing excellent practicality with space for laundry appliances and additional storage, keeping the main living areas clean and uncluttered.

At the heart of the home is a bright and spacious open-plan lounge, kitchen, and dining area. Designed with modern living in mind, this space is flooded with natural light thanks to an abundance of windows, creating a warm and welcoming atmosphere. Patio doors open directly onto a private decking area at the front of the property, perfect for relaxing or entertaining.

Externally, the home continues to impress with parking for a couple of vehicles, additional storage space to the rear, and a garden to the side offering further outdoor enjoyment. The property also benefits from multiple storage cupboards throughout, ensuring practicality alongside style.

With its tranquil surroundings, excellent privacy, and move-in-ready condition, this home presents an ideal opportunity for those seeking comfortable, low-maintenance living in a friendly community setting.

Available Date: 28 Apr 2026

Tenure: Leasehold

Council tax band: TBC

Location

Little Wood Lodge is a sought-after, private gated park home community situated in Yate, South Gloucestershire. Designed exclusively for residents aged over 40, the development offers a quiet and secure environment, ideal for those seeking a relaxed pace of life within a friendly and well-maintained setting.

Yate itself is a well-connected and thriving town, offering a wide range of local amenities including supermarkets, independent shops, cafés, and healthcare services. The popular Yate Shopping Centre is just a short distance away, providing everyday conveniences as well as retail and dining options.

The area is surrounded by attractive countryside, offering plenty of opportunities for walking and outdoor enjoyment, while still benefiting from excellent transport links. Yate railway station provides direct services into Bristol, and there are convenient road connections to Bristol, Bath, and the wider South West region, making it ideal for both local living and visiting family or friends.

This combination of peaceful surroundings, strong community feel, and excellent accessibility makes Little Wood Lodge a highly desirable location for comfortable, low-maintenance living.


Agents notes
1. When making an offer on this property we will ask you to produce identification documentation to comply with Money laundering regulations and ask for your co-operation in order that there will be no delay in agreeing the sale.
2. While we endeavour to make our sales particulars fair, accurate and reliable, they are only a general guide to the property and, accordingly, if there is any point which is of particular importance to you, please contact the office and we will be pleased to check the position for you, especially if you are contemplating travelling some distance to view the property.
3. The measurements indicated are supplied for guidance only and as such must be considered incorrect.
5. The particulars have been prepared in good faith but do not constitute fact or part of any offer or contact. The particulars should be verified by any prospective buyer

Pets are welcome at the discretion of the park owners.
Little Wood Park is exclusive to over 40"s only.
Park homes and park home estates for Adults only.

Council Tax
You should not be charged council tax but it is your responsibility to check this with the local council. This is not included in any of your charges.

Local Authority
South Gloucestershire Council, Badminton Road, Yate, BS37 5AF.

Licence
Little Wood Park is licensed by South Gloucestershire Council for 65 holiday homes.

Services

Gas
LPG direct from bulk underground tanks. Metered and billed quarterly.

Electricity
Metered and billed quarterly from direct supply.

Water / Sewerage
Included in the monthly pitch fee.

Telephone
Telephone lines are ducted to each plot, ready for connection.

Council Tax Band - Not Chargeable

Tenure: Leasehold , £366 monthly
Property Type: Park Home
Construction: Steel & Plastic
EPC Rating: A

Utilities & Services
Electricity Supply: Mains
Solar Panels: No
Other Electricity Sources: No
Water Supply: Mains
Sewerage: Mains
Heating: Gas Central Heating
Heating Features:Double Glazing

Connectivity
Broadband: FTTP(fibre to the premises)
Mobile Coverage: Average

External
Parking: Driveway Parking 2 Spaces

Restrictions & Risks
Building Safety Issues: No
Listed Building: No
Conservation Area: No
Tree Preservation Orders: N/A
Public Right of Way: No

Flood & Environmental
Long-Term Flood Risk: No
Historical Flooding: No
Flood Defences: No
Coastal Erosion Risk: N/A

Other Considerations
Planning Permission Issues: No
Accessibility / Adaptations: No
Coal Mining Area: No

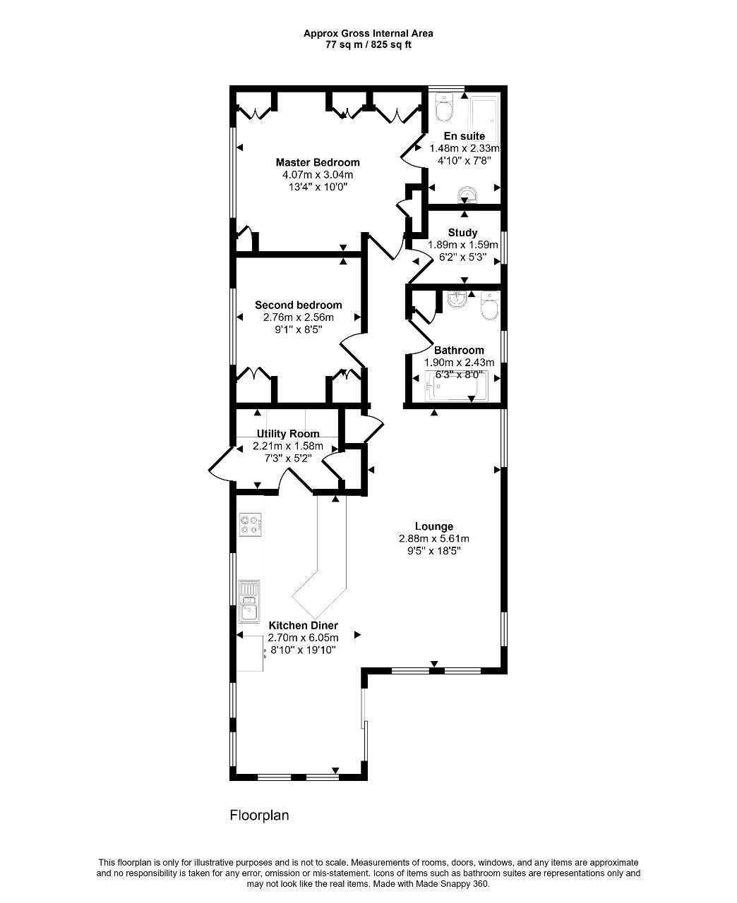
Floors/rooms

Ground Floor

Kitchen / Diner - UPVC sliding doors to side. UPVC aspect to front and side. Rad x3.

UPVC aspect to side. Wall and base units with eye level oven. Integrated dishwasher. Gas hob and extractor. Tiled splashback surround. Sink with 1.5 bowl and drainer.

Utility Room - UPVC door to side with frosted aspect. Rad. Wall and base units with space for fridge freezer. Built in washing machine and tumble dryer. Cupboard housing boiler. Cupboard.

Lounge - UPVC aspect to side and front. Fireplace. Rad. Cupboard with rad.

Second Bedroom - UPVC aspect to side. Rad. Built in wardrobes.

Bathroom - UPVC frosted aspect to side. Rad. WC, vanity sink unit and bath with shower over. Fully tiled. Heated towel rad. Storage cupboard with rad.

Study - UPVC aspect to side. Rad. Built in desk.

Master Bedroom - UPVC aspect to side. Rad. Built in wardrobes and over bed cupboards. Rad in wardrobe.

En-suite - UPVC frosted aspect with rear. WC, walk in shower cubicle and vanity sink unit. Heated towel rad. Rad. Fully tiled.

Hallway - Access to loft.

Exterior

Rear Garden / to side - Mainly laid to lawn.

Front Decking Area - Enclosed decking area with steps.

Front - Parking spaces for two cars.

Additional Information

For further information on this property please call 01454 529026 or e-mail [email protected]

Interested in This Property?

01454 529026

[email protected]

Request a Viewing

Share this property:

RightmovePRSGoogle Reviews